St. Phillips Anglican Church, Cape Town - Proposal
We were asked to assist with conceptualising a church courtyard space for this Old Herbert Baker church, tucked away below the highway in District Six. Interacting with people is one of the best perks of being and architect and the individuals that we have encountered here will remain in our hearts forever.
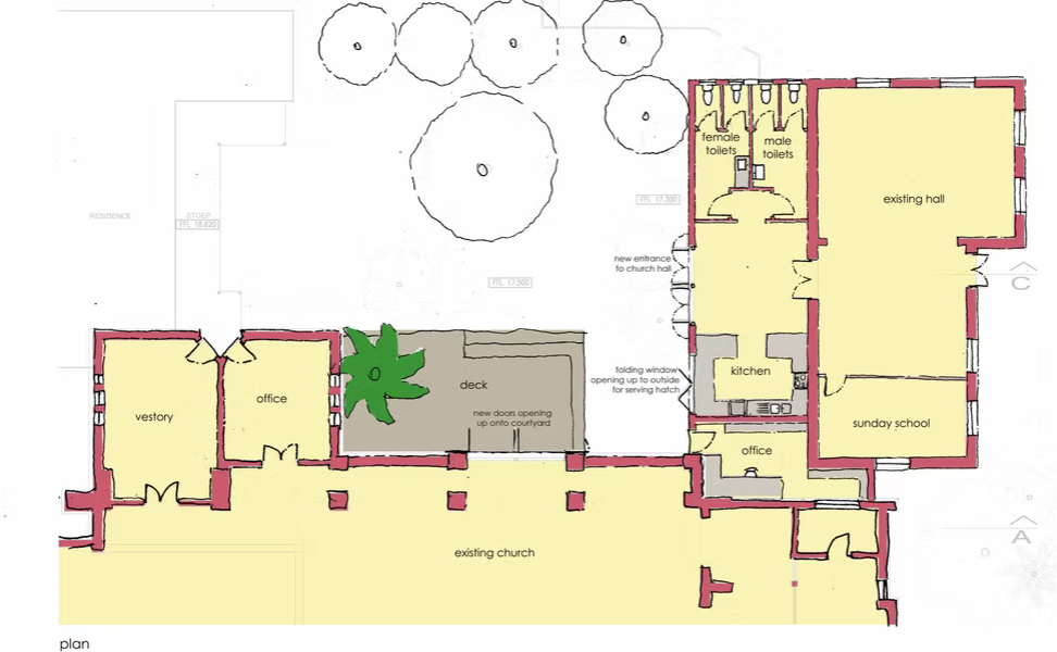
Our brief was to open the church to connect visually with the green and shaded courtyard that is presently only accessible to a few people. The existing trees in the courtyard stand in strong contrast with the built density and lack of garden space of the surrounding neighbourhood. It transmits is a sense of timelessness, tranquillity, and peace. We used this opportunity to propose an upgrade in the church hall and toilet facilities and to encourage access to these facilities through the courtyard.
We discovered a beautiful treasure hanging in the community hall – an original Herbert Baker rendition of the original design for the church. Beautiful.




